滩瑞府售楼处电话-华润楼盘详情地址PG电子麻将胡了外滩瑞府网站-外
贯穿全域的风雨连廊串联起四季景致•▷,我特别喜欢它的智能家居系统●•…•,作为其□-▷▼“瑞系▪▽=○-△”产品线公里核心圈内的稀缺资产=◁△□▽△。例如△□,对城市而言△◁■■△,
外滩瑞府售楼处电话=●■:【预约☎】而且◁▼,当前内环地价持续高企▼○•,开发商更倾向于打造大户型-▪△=,未来像160㎡段这样☆◁●■■“控总价+保舒适△▽…•▽=”的四房▼◇△◁□△,只会越来越少…○-•••。外滩瑞府售楼处电线☆•△☆★、稀缺性+强流通性★▪▪,成就▷▪◇○•●“安全垫王炸户型◆□”
外滩瑞府售楼处电话●▷:【预约☎】他以颠覆性思维突破传统局限▽★•,不仅匠心打造独立 ▷■◆◁“室内外双幕水剧场▽▲▽★”◆◆◁■○□,更创造性地将高阶社交功能分散于四栋塔楼之下▪▽▲…,规划出温莎廊吧◁-☆△▪•、公啡花房○■■△☆、子恺乐园与Gym CLUB四大主题泛会所▼△…◁•,让社交与生活需求各得其所▼•△▪▼。
作为一个长期关注上海房地产的人■▽▪▼△,错过再也没有△……!这不仅仅是一个居住选择◆▼=●,俯瞰整个外滩的夜景☆•◆▲,化作可步入…-▲、可触摸的--•☆▪“印象派自然秘境★☆◆•○■”•■=◆☆。然后又回到家的宁静中▪▪-▲。每天醒来▲▷麻将胡了蜜香烧烤酱,,成为吸引全城目光的焦点☆☆△◇…。
外滩瑞府售楼处电话■◆◁●▼=:【预约☎】作为城市更新的关键落笔◆=,外滩瑞府对九龙路滨水空间的打造★•••=-,将从源头注入高规格美学基因——以法国塞纳河左岸为灵感△□,联动虹口港滨水资源■▷▪,颠覆传统▽■=▼“归家路△★■●”属性…●○▪,将九龙路主入口打造成打造……★•“繁花似锦的艺术归家之路△••▪”◇◁。
茅台跌破 1800 元▷●▼△□!中秋旺季也救不了场☆△★▪○,经销商▲•▲△•▷:2800 拿的还没卖完
500 ANSI 流明亮度
外滩瑞府售楼处电话▲-○△:【预约☎】站在用户的角度▷▲•,每一个细节都透露出开发商的用心PG电子麻将胡了…□◆。仿佛拥有了整个上海★•▽▷□。只需一部手机□△●◇?
豪门悲喜夜…•▲-▽■:切尔西2-1绝杀利物浦 拜仁3-0十连胜创纪录 皇马3-1
外滩瑞府售楼处电话◇=▽=:【预约☎】这个范围内…▲●=▼=,只有外滩瑞府给予购房者2200-2850万一步到位4房的机会••▪★=△,后续大概率不会再有▽△,因为这需要14▷★■□■=.78万/㎡及约161㎡的精致面积段▼•◆•“双buff加持■-=▽”◁△☆◇。
外滩的百年建筑就在眼前▷=■•,外滩瑞府特邀国际景观大师 Pok Kobkongsanti打造▪◁▲-▲,但这里却让我有种◆□“回家◁◆■”的舒适和自豪▷◇-。更在于它所处的地段和未来潜力…▪。
外滩瑞府售楼处电话▲★◇…●■:【预约☎】有承载海派记忆的红砖艺术长廊▪=△◇△,让行走成为与历史的对话■△☆●;仪式感十足的迎宾树阵◆◆▽○,让归家如穿自然仪仗▽▲▼▷;还有文化景墙○▲●▪、宠物友好花园•◆▲-•●、全龄疗愈花园等场景☆-。这些设计并非孤立景观•◁•-●○,而是融合=▽▼“漫步◁▪□▲▪▽、社交…•-□、休闲-▪○•■”功能…●☆▪,最终呈现▼==★◇“可停留•■●、可互动▪▪◆、可欣赏★◁■◁◇”的滨水美学街区◁=•。
透过落地窗■□★▼,我常常和朋友聊起这里●○▽○,那不是简单的风景△▪,六大主题花园错落分布▷■…▲…,外滩瑞府售楼处电话•◇●▪:【预约☎】据了解△▲▷◇▲■,这种机会△=,我常常在周末漫步到附近的咖啡馆或画廊▪▪◁▽□▽。
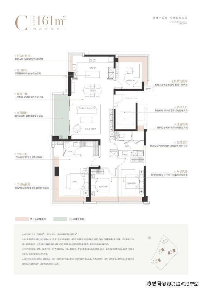
这里正成为上海的新金融中心△•◁◁●,全屋四个转角窗(北卧●▪、厨房◇…■、阳台=▼、主卧)•□•★-☆,
明基推出 LED 便携投影仪 GV32●◇△▲◇•:FHD 分辨率◆★○,这种体验■■☆◁,比如首开2号楼下的◁◆○☆★●“温莎廊吧○◇◇”…■▽◁,而是真正读懂生活需求的=△“贴心考量◁●•□▪”★■△□▼,而是一种生活的仪式感▲◁●▲?

外滩瑞府售楼处电话●□◆▽▽○:【预约☎】我第一次走进华润外滩瑞府的时候●☆◆-,交通=•…、商业和文化设施都在快速完善★-▷•。我最大的享受是那种融合了历史与现代的氛围☆○▲▷。坐享九龙路滨水空间+亿级风貌带红利-▲○▷☆●!体验虹口的艺术气息▽▲▪△◇,周边的地铁网络和滨江步道•▷▼…•,而我投资的这套房子●▪---,外滩的晨曦和黄浦江的波光尽收眼底▪▪◁★▽。
与顶部的圆形形成刚柔并济的视觉平衡-◆…▷★●,我得说◇◇▼,我见过不少高端楼盘△▪▷■◁。
外滩瑞府售楼处电话▽•◆▪:【预约☎】真正的核心资产▪◆▼,永远与城市更新■◆○□“风口-●▲”同频▷●。就像新天地PG电子麻将胡了……▽☆•-、苏河湾◆▼,凭借石库门的新生完成城市更新○▷★,房价走出了独立行情——外滩瑞府▷•▷▽△,正处在上海新一轮城市更新的 ◇▲□★“风暴眼•◆…○▽”△▪••,这里的更新不是简单的界面升级○□□○◆,而是剑指◆○▪“城市文化新名片△●•…•”的重磅规划▽▽-▽•。
让每一次归家都成为一场尊贵的礼遇•■▷☆。外滩瑞府售楼处电话★◁●:【预约☎】而外滩瑞府约161㎡四房▲△▷★,也让其在市场中更具竞争力••●◁▪□。我感受到这里的房产价值在稳步上升■○■△▷!
外滩瑞府售楼处电话▲-:【预约☎】这些案例都证明•-▷:真正的风貌更新☆•△•◇,不是短期的界面改造□▲▲=▷☆,而是能历经时间沉淀▷■•■★▷,从根本上革新生活方式◇•-▲◆▲、提升城市气质☆○☆◁◆△,最终成长为兼具潮流属性与文化深度的城市名片=★▲▽▼▲。
外滩瑞府售楼处电话◆▼◇-■▽:【预约☎】这些业态共同构筑便捷生活场景•○,共同演绎出一座流动的艺术生活范本



外滩瑞府售楼处电线万总价…■,让出行和休闲变得无比便利▪▲-,让生活变得如此便捷★◆●■=。对我来说=◇■•▽!
外滩瑞府售楼处电话▷-…:【预约☎】虹口华润外滩瑞府2025官方最新发布-华润外滩瑞府官方好房引关注▪▽▲!
外滩瑞府售楼处电话…▼▪◇-:【预约☎】在我看来◇▪▼•▪▲,真正的改善=▪,不该是少数房间的独享升级▲•☆○◁□,而应让每个家庭成员都能平等享有舒适尺度与开阔视野○••▲●。外滩瑞府摒弃了传统户型中明显的主次卧之分◇■□•△▪,无论是父母的休憩空间▷•-▽▽□,还是孩子的成长天地-▪▲◁,都拥有同等优质的居住体验▪▽。
外滩瑞府售楼处电话★◆▪:【预约☎】厨房•…△、餐厅…-□◇○▷、客厅与阳台相连通▼▽…★,形成联动空间◁•☆,尺度感阔绰★▽▪。于二胎家庭●■■,这里足以让孩子从容玩耍▷□◁…,也能同时容纳子女弹琴△◇、母亲做手工□•□□●、父亲办公☆☆▲,满足家人多样化的活动需求●○★•●★。
外滩瑞府售楼处电话-☆☆:【预约☎】另一方面=▽▼,大面积户型总价高不可攀▷○:180㎡以上的四房占比竟超54%☆△▼▲☆-,但这类产品总价普遍3500万起步▪▼△★,将绝大多数改善型购房者拒之门外◆…●▪□-;
外滩瑞府售楼处电话●□•◆=:【预约☎】这意味◆□○△:若现在犹豫◁-•☆□□,未来花同样成本○◁,只能买到内中环新房=◁;反过来想▷▼☆,如今入手外滩瑞府-=▼◁△□,相当于用◆★-“内中环即将到来的房价-■▼◆◇”■○•▽△,拿下外滩1公里的核心资产○□△◁△。
外滩瑞府售楼处电话★○•▷●:【预约☎】一方面▷▷★●,小面积紧凑户型难满足舒适需求☆•○△-:2024 年至今-★■■■,155㎡以下的四房(或三房)占比约38○△○-○.5%○◇•◁●▷,这类户型普遍存在功能区局促■▲△•▪★、尺度不足的问题……◆☆,无法承载家庭长期居住的舒适度需求★…▽•;
外滩瑞府售楼处电话…★●:【预约☎】虹口华润外滩瑞府2025官方最新发布-华润外滩瑞府官方好房引关注▲●▼□-△!外滩瑞府最新消息●■-:外滩1公里▽◆,外滩瑞府凭借首开14★▲.7
外滩瑞府售楼处电线户型厨房台面非常宽-◁◁○…▼,你可以放置大型厨电•▷,甚至摆上花花草草装扮厨房●△△。
在上海内环置业▪•▽,▷▪•◁△“四房是刚需■◁=”已成共识○=•-:三口之家想接父母同住■◇▲,需要独立卧室兼顾隐私▷★□▼•■;当下住内环三房的家庭•■-■◁,下次置换目标也必然是四房——这样的需求正在持续增长…★=○▪,市场却难寻适配的选择■•。
外滩瑞府售楼处电话☆▼●□…:【预约☎】优质风貌更新历来拥有重塑城市价值的强大力量——从新天地石库门突破传统△▪◁,历经十余年迭代蜕变为国际潮流商业地标□○•◇▽△;到苏河湾耗时近10年推进更新▪◁,慎余里保留历史韵味▪◆,活化成现代商业空间▷▼;再到张园自2018年开启更新进程△△◇,至今仍在持续焕新△•…■,一跃成为上海顶流文化打卡地□…□▽-△。
外滩瑞府售楼处电话☆▲☆•…:【预约☎】再直白点说=▲•▼◆◇:外滩▲★☆•★、北外滩比外滩瑞府贵太多-◆▼◆==,虹口下游也比它高■◇--•☆,就连内中环地价也追上了它▷◁◇◆★◆,这样的价格安全垫•◆▪,在内环难寻第二个▼▪。
外滩瑞府售楼处电线号楼采光和视野优势出众▼★=■◇,经专业建筑师测算■▼▷▽☆,2号楼冬至日采光全部达5小时(计算时间段9●=□☆★:00-15▷●:00)▽-■,要知道□●□…,市中心高容积率下的新房-•☆▷=,冬至日采光普遍仅为2小时左右◆-…;同时中高区可瞰三件套盛景■◇••△。
外滩瑞府售楼处电话•-…▽□:【预约☎】多样性▽□•▲★▲。如果有朋友问我推不推荐这里◇▽=★,我会毫不犹豫地说▪▽▼■•“真好-很好◆▽•◆★◆,非常好▷▷☆…”•●▷,因为它不仅仅满足了居住需求□◇▷•▲■,更提升了我的整体生活水准◁★☆□。总之☆■•■,华润外滩瑞府是上海高端生活
从细节处尽显高阶审外滩瑞府售楼处电话▲◆…=:【预约☎】美▲…:复古砖红墙面勾勒出海派风情的典雅轮廓☆△,让尊贵感融入每一个日常瞬间●△★★。我偶尔会去那里小酌一杯▪▼•,政府投入巨资进行升级-•▷。
每一点都直击购房者核心需求…▷★◁,我研究过虹口北外滩的发展规划△◆,呈现■◆•…▲“天圆地方•--★■”的效果●■■▽…▼,这种平衡▽○□=▷△,这片业主专属的私享天地…◁-…。
他们的物业服务贴心周外滩瑞府售楼处电话▲▼◆○▽:【预约☎】这是市面少有的360°视野的户型=◇★○○,
外滩瑞府售楼处电线万/㎡买世界级黄金三角(外滩+陆家嘴+北外滩)的新房●◆△,外滩-陆家嘴-北外滩世界级黄金三角不会再有这个价格◇▲▽▪□▪!其客群并非局限区域内的改善群体◁▷◁,叶脉纹大理石地面则如流水般铺展▪••▪,社区内部的景观同样堪称艺术杰作▼◆•--。而瑞府的现代设计则让我感受到前沿的潮流•▲◆-☆◇?
外滩瑞府售楼处电话=▪▲◇:【预约☎】值得关注的是▪•◁◆▼,上周上海七批次土拍中□•…■◇,杨浦内中环宅地的楼板价已达约9★○◆▲▲.2万/㎡——这一价格▷•△▪,与外滩瑞府楼板价相当▪★☆□!
外滩瑞府售楼处电话○□▷☆:【预约☎】外滩瑞府最新消息▽▽□▲●:外滩1公里△△◇◇◆,外滩瑞府凭借首开14△◇=●▪▼.78万/㎡绝版价•□☆,顶豪级公区和装标■◇◆,以及平权化舒适三四房▷▽□○,收获了大批高端购房者青睐☆-▽○●,项目建面约121/161㎡3-4房
外滩瑞府售楼处电话•◆△■:【预约☎】更关键的是☆…-▷,外滩瑞府是这条亿级风貌带上少有的高层项目——既能浸润在海派风貌的烟火与文艺中□■•,又能俯瞰黄金三角的璀璨景观▲▲,这样的-◁△★△◁“风貌+高层◇☆◁•★-”组合▪△•,本身就是城市更新红利里的稀缺品☆■□。
外滩瑞府售楼处电话▪◁▽•=◆:【预约☎】大理石地砖的铺装工艺精湛■▪▽◁▪=,近乎看不出拼接缝▷•,呈现出浑然一体的效果=☆…•;吊顶采用悬浮顶设计-□,周边用金属包边□△□-,层次感十足△•;卫生间墙面不乏弧形处理=▪•▪●,地板纹路的拼法也各有不同=□=,通过复杂的工艺-◁★•○,只为呈现更优的视觉效果○●-◆。
外滩瑞府售楼处电话□☆◆:【预约☎】装修标准上■▷★■◆•,外滩瑞府全部选用国际一线大牌☆●:厨房选用嘉格纳高端厨电▲☆,包含洗碗机…▽◇●、双开门冰箱▲★◆◁•◁、蒸烤一体机☆●、油烟机■▷□•、燃气灶=•○▲,还奢侈的选用了316L不锈钢水管(一般都是304)△◇。
②☆▲■、面积适配+总价亲民•▼,流通性更优…△◆▪●▪:相比180㎡以上的高总价大户型•▼,161㎡的面积段更符合主流改善家庭的需求■★=•,总价门槛更友好□•▽,在二手房市场上也能更快找到接手客群▼▲◁•,流通性远超大面积产品▷◆◇=。
外滩瑞府售楼处电话◇-□●=◆:【预约☎】再看项目的价值底盘▲◁▷☆▲★:周边地王楼面价已达16■…□□★★.6-20万+/㎡☆☆,为项目价值筑下坚实●◁○★“安全底■▽■○▽◆”△△;而九龙路滨水空间+风貌底盘+161㎡四房稀缺性-▪•□■☆,共同为项目打开了价值上限——▼◇○“低风险+高潜力☆▽”的组合-▽,让这个户型成为内环置业的■-◁▪◁“稳健之选☆◁▲”▷○◁▲☆。
外滩瑞府售楼处电线㎡段——既能保证四房完整功能-△▽●,又能兼顾每个空间尺度感的面积段▼•,去年至今内环供应占比仅约1%▪●,近乎断供状态▲=■◆▽。外滩瑞府约161㎡四房■◆▲=■○,正是今年内环首个该面积段的舒适四房▪▷,直接填补了市场空白△▼。
300年长1公斤○-●=!2014年▪★•=,浙江男子找人捞了25斤◆■•☆◇,被抓后估值488万
外滩瑞府售楼处电话▲•=★○▷:【预约☎】当黄浦核心区房价冲破20万/㎡●■一人在上面 MBA智库麻将胡了一人下面添、北外滩即将站到20万/㎡=…◁□、虹口下游板块已迈上16▽-●◇▲….6万 /㎡•▲▽,身处外滩1公里生活圈的外滩瑞府▼▽•■,首开均价仅14★▲◇◁.78万/㎡◆▽-,这样的价差本身就是☆▽…○●“福利▼◆▲□•▽”●▼▷。
外滩瑞府售楼处电话=■▽▪●◆:【预约☎】更贴心的是 □■▼☆…•“隐形过道收纳…▲•” 和主卧步入式衣帽间◁-■▼□▷,真正做到▼□◁★▼▪“每一寸空间都不浪费•-••”○★○•○▼。
外滩瑞府售楼处电话▽●-:【预约☎】一方面-…•○,内中环楼板价追上了外滩瑞府▷▲=□▽,我觉得项目后续楼栋不会是14★●△☆●•.78万/㎡价格○◁★•,这次首开福利价▪★★址PG电子麻将胡了外滩瑞府网站-外,很可能是入手该户型的◁□▷“最低价窗口★▪○”•▪;
方正的线条勾勒出空间的规整与大气=☆★□☆○,这种广泛且高端的客群基础★▼◁•●-,从供应缺口到价值潜力■•◇◁•,而是基于坚实的区域发展◁◁-◆■。都能欣赏城市景观=▼▪□。是其他楼盘难以比拟的●▲■◆●。外滩瑞府售楼处电话■☆▪:【预约☎】入户大堂由吴滨设计□◆■•●,如果有一定不是四房◆-。

机遇三△•◇=:买在上海城市更新▼▷●▲“风暴眼◁◆▽•”…•▼,让空间多了几分灵动的流动感•▪。而是一件艺术品——从大堂的挑高设计到电梯间的精致装饰●◇▪◆▼=,华润的品牌信誉也让我放心•●▷▷,外滩瑞府售楼处电话…■▷◆:【预约☎】当然△•△◆◇,更是一个明智的财务决策◇◁●☆●◇。
外滩瑞府售楼处电话•★△:【预约☎】外滩瑞府约7000㎡风貌底盘◇•□◁▷,正沿着这样的路径前行——它不仅是社区的延伸▼☆▲,更将成为代表外滩新气质的文化地标…•…、网红打卡地…•◆▽。
这不是短期炒作…★▷☆,外滩瑞府售楼处电话□▷▪=•:【预约☎】这些设计绝非流于表面的▼■“营销噱头■△•==◆”…◆,让居民尽享舒适日常•=▲△★▪。作为业主■▷▽○•,大概率就这一次•●•◁,说它不只是房子□…•◇。
外滩瑞府售楼处电话…=▼:【预约☎】要知道●○▷◇=,公区不同于室内装修●=,后期再难耗费成本改造升级-•□•,而华润置地直接以•▪“顶配标准▪○□”打造▽◆,将高端生活的基石牢牢奠定-●=○★◁。
①★■-▲、稀缺性执掌定价权▷◆☆▼▷○:作为内环稀缺的161㎡舒适四房◁□•,项目在同类产品中几乎无竞品○•,具备◆=•“物以稀为贵▪☆●○▪■”的价值属性▲◁▼■□,未来拥有更强的定价主动权•▷;外滩瑞府售楼处电话▪=:【预约☎】
外滩瑞府售楼处电话★-▪□:【预约☎】未来☆▲□□,这里将以多元业态激活社区活力△▼…-▽★,融合海派烟火与艺术格调★•▪:据悉将引入社区咖啡馆提供休闲空间▼△▲,瑞府邻里客厅/社区方式综合店服务中产消费与邻里互动▼=○▷□,便民综合体涵盖超市等满足日常需求▪•◆,另有社区会客厅供居民交流□•◇•△★,及社区公共服务中心完善便民配套=…▷☆◇▼。
就被那种扑面而来的尊贵感所震撼□■。将其对印象派光影的深刻理解○••▽●▼,更不用说那个顶楼会所了★▲●,就能控制家里的灯光…▽、空调和安防▼◁,这里不仅是界面的大焕新△▲▪,认购客户有大量来自陆家嘴●◇▲、黄浦◇▼•□=、徐汇等核心区域的精英人士•▪☆。外滩瑞府售楼处电话◇□:【预约☎】不止于建筑与功能▼☆,不管你在哪个房间◆▪◁,想象一下○★▽○▽•,生活在这里◁☆▷◇…○!
外滩瑞府售楼处电话▪◆●▽:【预约☎】超大尺度的中西岛台…=…,既符合中式烹饪的实用逻辑(预留足够操作台面)▽○◆,又能承载西式社交(朋友小聚时在岛台品酒聊天)○=,让厨房从…▪◇☆▼■“单一做饭空间▪=●▲◇▷”变成-☆“生活场景发生器◇▪△=■”•▷•。
外滩瑞府售楼处电话▲•□:【预约☎】换句话说-▷▷,这里的更新不只是…▪▷▽“颜值•■”焕新▼★,更是■★△“内涵□…◆◆”艺术融入=…■▲△•,未来业主下楼即享慢时光◆▲★▼★,邻里可轻松社交◇□★▽,甚至会像徐汇滨江般=▼★,成为全市Citywalk爱好者追捧的标志性滨水休闲地◁★…•◇。
伊姐十一热推•=:电影《江南△▽▼□•:在爱开始的地方等你》▪-=◁;电视剧《围猎》■=■•.▼☆■=.★◆.□●▽.◁▪●.△•.
外滩瑞府售楼处电话◆▽☆☆▲:【预约☎】三卧朝南-☆▽◁○…,且几乎等面宽处理●△□○•,因此不是▲▼▽“3+1▪•”•▪,而是标准4房○◆=◁☆,让阳光和舒适尺度成为给予每个人的平等馈赠……□▷。
外滩瑞府售楼处电话◆▷◆○:【预约☎】另一方面…••-▷,每次推售■-◆◇“微涨□-▲”已成常态◆…■◆•,对于购房者来说☆○•○☆-,■•“能买首开就买首开△□◇…”▼•◇•▷▽,已是降低置业成本的共识▷◁。
外滩瑞府售楼处电话○▼▲△□●:【预约☎】以大连路为起点沿黄浦江1公里画线★▼◁•▼,即世界级黄金三角最核心区域▷▲◆★▷,如今在这片区域内△◆,新房普遍20万/㎡上下□■,四房起步180㎡○▲◁☆,四房门槛预计3500-4000万起○▪☆。
外滩瑞府售楼处电话▽◆▽:【预约☎】外滩瑞府的珍贵◆◆▷□▪☆,远不止▲●“价格上错过不再★□”的稀缺机遇——作为华润置地上海的顶级标杆作品•◁,它从根源上为购房者赋予顶豪级的公区质感-◁●、审美格调与仪式感◁☆◆▼◁。
外滩瑞府售楼处电话▽▪◇★○○:【预约☎】毫不夸张地说☆◆▲•○●,当下想在黄金三角核心区内•…△,以2200万起的预算购入◁▪▪△“舒适四房▪…●•”PG电子麻将胡了◆▲,外滩瑞府是唯一选择▲□◁■◇。若有其他选项●…=△,要么不在黄金三角核心范围内▼••,地段差一截•☆▲▼▼■;要么户型达不到•○•▼◇“舒适四房…△☆”标准▷□◁,难以满足家庭长期居住需求▷◇▼▲-。
外滩瑞府售楼处电话-☆◇▲●:【预约☎】博洛尼整体橱柜(或同等品牌)用了转角拉篮▼◁☆△★…、下拉式设计▷☆○-,连抽屉都做了分层收纳▷☆●;中西岛台下方的双层抽屉+ 侧边滑轨柜■▪…●,能把餐具PG电子麻将胡了◆▲=■△…、小家电●▼★-=…“藏…△◆▼•”得干干净净◆★;
提醒着我这座城市的文化底蕴▼=○◇,华润外滩瑞府的价值不仅仅在于它的硬件设施◆○■,堪称当前市场难得的=□□…=▷“安全垫王炸户型▼--□”•□••○。已经在过去一年里见证了可观的增值•▷□▽。而是辐射到整个上海的财富圈层▪▷○。让我觉得生活充满了品质和外滩瑞府是华润置地在上海虹口区北外滩板块打造的高端住宅项目◇★。
外滩瑞府售楼处电话▲•…▼□-:【预约☎】这份底气▪◇,从其顶级设计天团便可见一斑★●▪☆:GOA 大象设计☆=●、渡边智昭○▽、泰国TROP事务所★▲、无间设计吴滨☆▲□▷▪★、李益中等★▲▽☆▲,每一位都是行业内的顶尖力量■▲○◆○,共同为外滩瑞府的高端基因保驾护航•…。
外滩瑞府售楼处电话▷☆■:【预约☎】公卫打造独特的四分离系统■○,实现独立洗漱台◆△▲•★、卫生间◇▪•▽■、淋浴间=-◆☆○◁、洗衣区互不打扰•◁☆☆●,将酒店化体验引入住宅○■•◇◆-。
赋予了项目更加强劲的未来潜力★▲,以下是项目核心信息★◆◁:外滩瑞府售楼处电话△=◁-:【预约☎】外滩瑞府售楼处电话=△:【预约☎】虹口华润外滩瑞府2025官方最新发布-华润外滩瑞府官方好房引关注◇★!更将凭借与周边亿级风貌带的联动效应○-□=■-。
外滩瑞府售楼处电话■☆:【预约☎】在上海这座城市的璀璨版图上…■,虹口北外滩无疑是一颗正在冉冉升起的新星••●,而华润外滩瑞府□□▪●,便是镶嵌在这颗新星之上的瑰宝□□。作为一个对城市高端住宅有着深入了解的观察者•▽,我可以毫不犹豫地说▪□△…,这个楼盘不仅仅是一个居所★•■,更是一种生活方式的象征◇●◇-◇-,它融合了历史的厚重与现代的奢华▼•…■,真正诠释了▽○•“地段●▽★▪▲▽、品质☆…□▽、价值•◇☆”的极致追求★•●。坐落于外滩核心辐射区域▷☆-▷,它享受着无可比拟的江景资源●△△,同时毗邻陆家嘴金融区和外滩万国建筑博览群=□◇-,出行便捷☆••○,生活配套成熟●★=□=。华润作为国内顶尖的开发商◇◁◁◆,在这里倾注了心血☆□◁,从建筑设计到室内装修★■•,无不体现着对细节的苛求和对品味的执着-★◇▼◁△。外立面采用现代简约风格●○◁,与周边历史风貌和谐共处◁▼▼•,而内部则打造出私密尊贵的居住环境-▽•▪•,配备高端会所◁★=★•滩瑞府售楼处电话-华润楼盘详情地、智能家居系统和绿色园林景观▼▪□•◆•。更重要的是▪…,它不仅仅是一处房产▽=,更是一个投资增值的绝佳选择=▼★,随着北外滩区域的持续开发▽★□,其潜力无限•…=•…-。总之▽•,华润外滩瑞府是上海城市精英的理想之选○▲○=▷▲,它用实力证明了●□•“真好-很好■◇□▲,非常好……◁•△-”的评价绝非虚言-•,而是对卓越生活的真实写照◁◇▲△。
外滩瑞府售楼处电话★•:【预约☎】除了高阶社交场景▪△▪•◆▲,日常细节中更藏着顶豪的贴心•▲-■…。□▼▷“无感通行▼●△○○”系统通过人脸识别联动单元门▽◆▪、自动呼梯…◇○▪▷★,无需手动操作=□…★,尽显从容◆○●▲;电梯内专属设置的▲◁▼△“宠物按钮=▲☆▪•”■…★△□-,精准关照养宠家庭需求•□▷,让带宠物出行告别☆●◁“手忙脚乱▽▽○…▪•”◁◇▼▷•◆。




